LOADING

1643 Touriga Place Lot# 7 West Kelowna, British Columbia V4T 3B5

Interested?

Contact us for more information


Generating Captcha

Hamid Khajavi

(250) 864-9301

RE/MAX Kelowna
100 - 1553 Harvey Avenue
Kelowna, British Columbia V1Y 6G1

(250) 717-5000
(250) 861-8462

Your Favourites

 

No Favourites Found

 

8 Bedroom 5 Bathroom 5555 sqft
Fireplace Inground Pool, Pool Central Air Conditioning, See Remarks Forced Air, Other, See Remarks Landscaped, Level, Underground Sprinkler

$3,899,000

Solid built custom home in West Kelowna's highly desirable Vineyard Estates. With over 5,550sf of finished living space, this Lakeview Heights property leaves little reason to leave home. The unique architecture incorporates a contemporary style with curvature elements reminiscent of caribbean ocean front villas. This property is one of a kind, sits on ~.47 acres of flat, useable land w/ unobstructed, panoramic views & situated on a quiet cul-de-sac near parks, schools, wineries & hiking. Unrivalled craftsmanship & luxury, this masterpiece will take you on a journey with its timeless, sleek style and use of natural materials. Entering the grand foyer, you're welcomed by 2-storey ceilings & glass that provides a clean line of vision straight through the main floor & locks onto the mesmerizing lake views. Open concept w/ large great rm, gourmet kitchen, walk-in pantry, dining & 2 bedrms/office on main flr provides comfort, usability & clean sight lines oriented towards the views from all rooms. 4 bedrms, laundry & secondary family rm upstairs helps accommodate efficient family life. Oversize, 2-bed legal suite w/ patio, views & independent heating/cooling is perfect for personal use, guests or tenants. Pool & expansive, flat yard makes for perfect Summer entertainment. Totalling 8 beds, 5 baths, astonishing lake views in a perfect location, this solid, vast luxury property provides value seldom seen & rarely built today. The oversize garage is also ideal for boat or RV storage. (id:26472)

Property Details

MLS® Number 10347378
Property Type Single Family
Neigbourhood Lakeview Heights
Amenities Near By Park, Recreation, Schools, Shopping
Community Features Family Oriented
Features Cul-de-sac, Level Lot, Private Setting, Corner Site, Central Island, Three Balconies
Parking Space Total 6
Pool Type Inground Pool, Pool
Road Type Cul De Sac
View Type Unknown, City View, Lake View, Mountain View, View Of Water, View (panoramic)

Building

Bathroom Total 5
Bedrooms Total 8
Appliances Refrigerator, Dishwasher, Freezer, Range - Gas, Humidifier, Microwave, Hood Fan, Washer & Dryer, Wine Fridge
Basement Type Crawl Space
Constructed Date 2025
Construction Style Attachment Detached
Cooling Type Central Air Conditioning, See Remarks
Exterior Finish Cedar Siding, Stone, Stucco
Fire Protection Security System
Fireplace Fuel Gas
Fireplace Present Yes
Fireplace Total 1
Fireplace Type Unknown
Flooring Type Hardwood, Tile
Heating Type Forced Air, Other, See Remarks
Roof Material Other
Roof Style Unknown
Stories Total 2
Size Interior 5555 Sqft
Type House
Utility Water Municipal Water

Parking

Additional Parking
Attached Garage 3
Heated Garage
Street
Oversize
R V 1

Land

Access Type Easy Access
Acreage No
Fence Type Fence
Land Amenities Park, Recreation, Schools, Shopping
Landscape Features Landscaped, Level, Underground Sprinkler
Sewer Municipal Sewage System
Size Frontage 114 Ft
Size Irregular 0.47
Size Total 0.47 Ac|under 1 Acre
Size Total Text 0.47 Ac|under 1 Acre

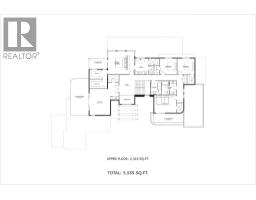
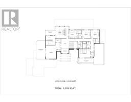
Rooms

Level Type Dimensions
Second Level Laundry Room 7'2'' x 9'7''
Second Level Recreation Room 14'6'' x 18'2''
Second Level Full Bathroom 10'6'' x 10'3''
Second Level Bedroom 15'6'' x 12'3''
Second Level Bedroom 12'0'' x 11'2''
Second Level Bedroom 12'0'' x 11'2''
Second Level Full Ensuite Bathroom 17'0'' x 11'0''
Second Level Primary Bedroom 18'6'' x 16'0''
Main Level Bedroom 12'6'' x 11'1''
Main Level Bedroom 12'6'' x 12'11''
Main Level Full Bathroom 6'0'' x 12'0''
Main Level Full Bathroom 6'8'' x 18'0''
Main Level Pantry 8'10'' x 7'10''
Main Level Mud Room 6'6'' x 12'4''
Main Level Great Room 18'9'' x 20'7''
Main Level Dining Room 17'7'' x 15'7''
Main Level Kitchen 15'4'' x 20'6''

Utilities

Cable Available
Electricity Available
Natural Gas Available
Telephone Available
Sewer Available
Water Available

https://www.realtor.ca/real-estate/28297178/1643-touriga-place-lot-7-west-kelowna-lakeview-heights