LOADING

2598 Mountainview Crescent Unit# 33 Invermere, British Columbia V0A 1K6

Interested?

Contact us for more information


Generating Captcha

Scott Sauermann

(250) 342-5889

Maxwell Rockies Realty
1214 7th Avenue, Box 2280
Invermere, British Columbia V0A 1K0

(250) 341-6044
www.realestateinvermere.ca/

Your Favourites

 

No Favourites Found

 

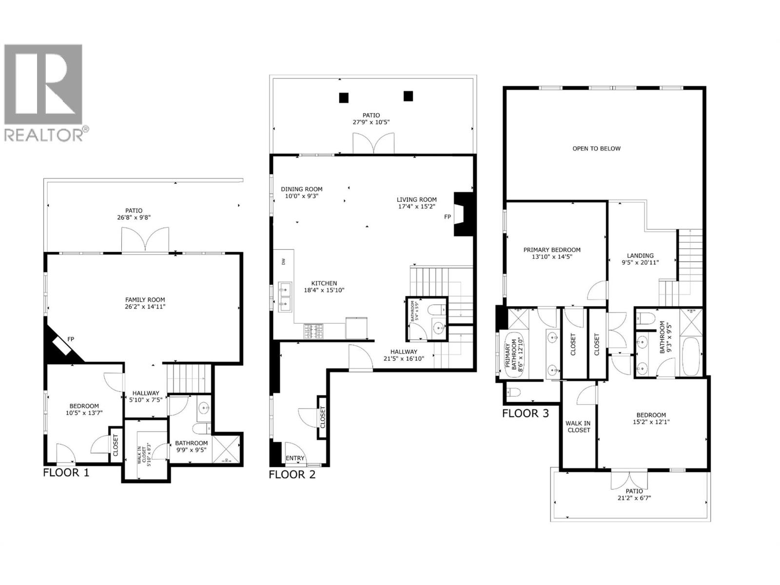
3 Bedroom 4 Bathroom 2631 sqft
Split Level Entry Fireplace Heat Pump Forced Air, Heat Pump

$769,900

Maintenance, Reserve Fund Contributions, Insurance, Ground Maintenance, Property Management, Other, See Remarks, Waste Removal

$600 Monthly

Elevate your lifestyle in this stunning mountain haven, where luxury meets nature in perfect harmony. Spread across 3 meticulously designed floors, this 3-bedroom, 3.5-bathroom retreat offers an unparalleled living experience. The heart of the home boasts a spacious living area, perfect for both relaxation and entertainment. The home's thoughtful design seamlessly blends indoor and outdoor living, with each level offering unique perspectives of the breathtaking mountainous surroundings. The open-concept kitchen and dining area, ideal for culinary enthusiasts, promises to be the backdrop for countless memorable meals and gatherings. As you ascend the staircase, you'll discover a built-in office space and dual primary suites that serve as your personal retreat. The large guest bedroom in the walkout level has ample room for your guests including a bathroom that features a steam room-suitable for six after a hard day of skiing. With its prime location this property not only offers luxury living but also outstanding mountain views and partial lake view with the promise of a wonderful Columbia Valley lifestyle. Whether you're seeking a permanent residence or a vacation getaway, this home stands ready to fulfill your dreams of mountain living without compromising on modern comforts and style. (id:26472)

Property Details

MLS® Number 10360347
Property Type Single Family
Neigbourhood Invermere
Community Name Castlerock Villas
Parking Space Total 4
View Type Mountain View, Valley View

Building

Bathroom Total 4
Bedrooms Total 3
Appliances Refrigerator, Dishwasher, Range - Electric, Microwave, Washer & Dryer
Architectural Style Split Level Entry
Basement Type Full
Constructed Date 2007
Construction Style Split Level Other
Cooling Type Heat Pump
Exterior Finish Other
Fireplace Fuel Gas
Fireplace Present Yes
Fireplace Total 2
Fireplace Type Unknown
Half Bath Total 1
Heating Type Forced Air, Heat Pump
Roof Material Asphalt Shingle
Roof Style Unknown
Stories Total 3
Size Interior 2631 Sqft
Type Duplex
Utility Water Municipal Water

Parking

Attached Garage 2

Land

Acreage No
Sewer Municipal Sewage System
Size Total Text Under 1 Acre

Rooms

Level Type Dimensions
Second Level Primary Bedroom 15'2'' x 12'1''
Second Level Loft 9'8'' x 10'7''
Second Level 4pc Ensuite Bath Measurements not available
Second Level Bedroom 14'5'' x 13'10''
Second Level 4pc Ensuite Bath Measurements not available
Lower Level Utility Room 6'0'' x 12'0''
Lower Level Family Room 26'2'' x 14'11''
Lower Level Bedroom 10'5'' x 13'7''
Lower Level 4pc Bathroom Measurements not available
Main Level 2pc Bathroom Measurements not available
Main Level Dining Room 10'0'' x 9'3''
Main Level Kitchen 18'0'' x 13'4''
Main Level Living Room 17'4'' x 15'2''

https://www.realtor.ca/real-estate/28766318/2598-mountainview-crescent-unit-33-invermere-invermere