5 Bedroom
3 Bathroom
3380 sqft
Fireplace
Baseboard Heaters, Hot Water, See Remarks
Landscaped, Level
$629,000
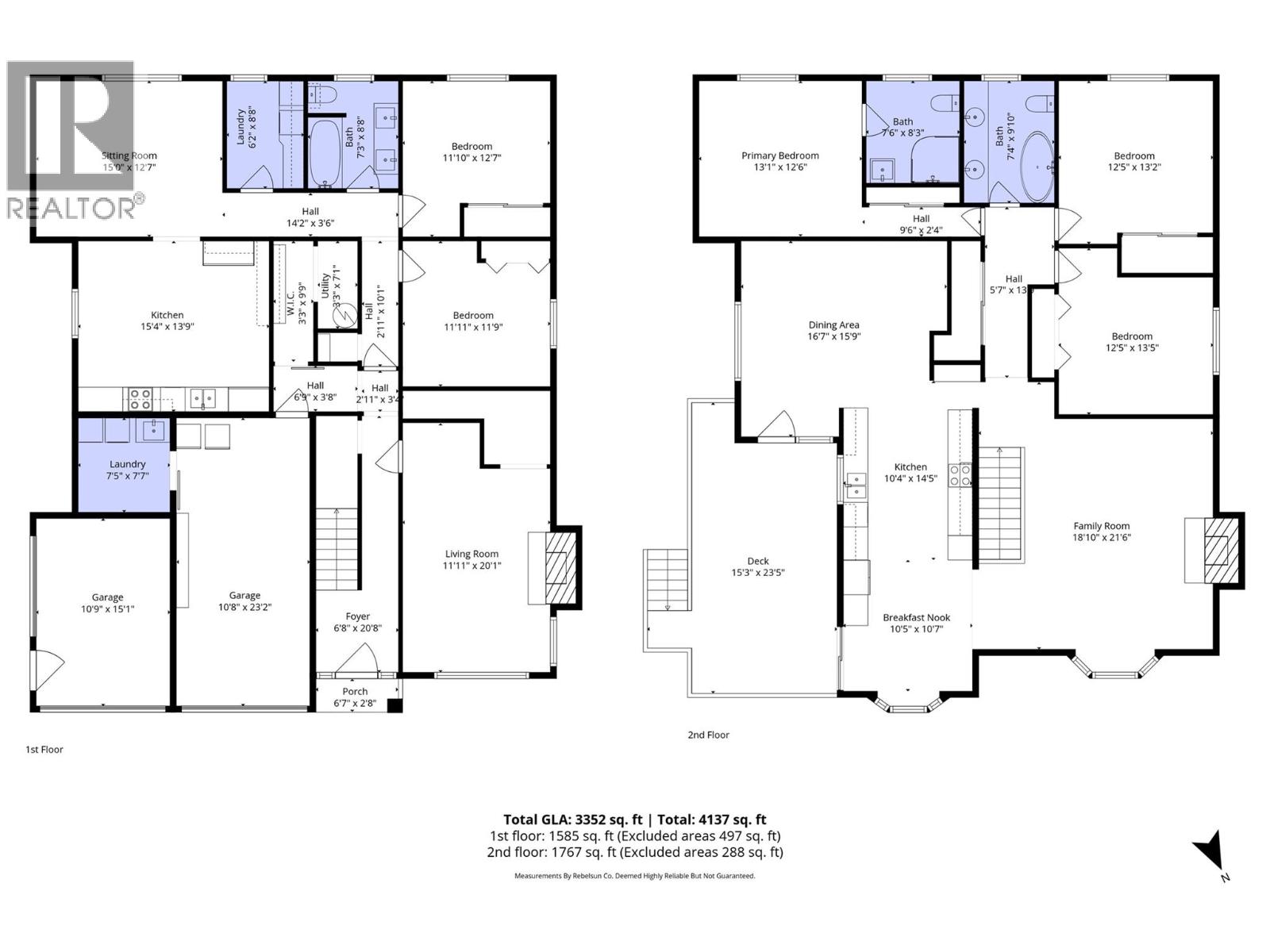
Exceptional opportunity for multi-generational living or investment, this substantially updated 3,380 sq ft home offers space, privacy, & a fully self-contained 2 BR suite. With 5 bedrooms and expansive living areas, the layout allows families to live together, yet separately, making it ideal for in-laws/tenants downstairs while the main family enjoys the upper level & Fam rm down. The main home features a bright open kitchen and dining area, both w/ access onto the deck, large living & family rooms, a spacious primary bedroom with 3-piece ensuite, and a 4-piece main bath. The suite has 2 bedrooms, a 5-piece bathroom & its own laundry room w/ sink. Substantially renovated 2021 through 2025, upgrades include a new kitchens, flooring, bathroom improvements, wiring /plumbing upgrades and a new laundry room. The home is move-in ready and includes all appliances for both the main home and suite, plus water softener. Cozy wood-burning fireplaces are featured up and down, plus a wood stove insert in the basement family room. Outside, enjoy a fully landscaped/fenced private backyard, new sundeck, irrigated raised garden beds, insulated/wired 9x12 storage shed, and a charming fish pond w/ new liner & pump in the front yard. A large double garage provides excellent parking and workshop space. Efficient on-demand hot water heating supplies both heat and hot water in one system. A rare and versatile property offering comfort, independence, and long-term investment value. (id:26472)
Property Details
|
MLS® Number
|
10371522 |
|
Property Type
|
Single Family |
|
Neigbourhood
|
Merritt |
|
Amenities Near By
|
Park, Schools |
|
Community Features
|
Family Oriented |
|
Features
|
Level Lot |
|
Parking Space Total
|
6 |
|
Storage Type
|
Storage Shed |
Building
|
Bathroom Total
|
3 |
|
Bedrooms Total
|
5 |
|
Appliances
|
Oven - Built-in |
|
Constructed Date
|
1986 |
|
Construction Style Attachment
|
Detached |
|
Exterior Finish
|
Brick, Vinyl Siding |
|
Fireplace Fuel
|
Wood |
|
Fireplace Present
|
Yes |
|
Fireplace Total
|
2 |
|
Fireplace Type
|
Conventional |
|
Flooring Type
|
Laminate, Vinyl |
|
Heating Type
|
Baseboard Heaters, Hot Water, See Remarks |
|
Roof Material
|
Asphalt Shingle |
|
Roof Style
|
Unknown |
|
Stories Total
|
2 |
|
Size Interior
|
3380 Sqft |
|
Type
|
House |
|
Utility Water
|
Municipal Water |
Parking
Land
|
Access Type
|
Easy Access |
|
Acreage
|
No |
|
Land Amenities
|
Park, Schools |
|
Landscape Features
|
Landscaped, Level |
|
Sewer
|
Municipal Sewage System |
|
Size Irregular
|
0.16 |
|
Size Total
|
0.16 Ac|under 1 Acre |
|
Size Total Text
|
0.16 Ac|under 1 Acre |
Rooms
| Level |
Type |
Length |
Width |
Dimensions |
|
Lower Level |
Utility Room |
|
|
7'6'' x 7' |
|
Lower Level |
Laundry Room |
|
|
9' x 6' |
|
Lower Level |
Laundry Room |
|
|
10'4'' x 6' |
|
Lower Level |
5pc Bathroom |
|
|
9' x 7'9'' |
|
Lower Level |
Foyer |
|
|
6'8'' x 6'6'' |
|
Lower Level |
Bedroom |
|
|
12'4'' x 12' |
|
Lower Level |
Bedroom |
|
|
13'2'' x 12' |
|
Lower Level |
Living Room |
|
|
13'6'' x 12'4'' |
|
Lower Level |
Kitchen |
|
|
13'10'' x 13'4'' |
|
Lower Level |
Family Room |
|
|
19'6'' x 12' |
|
Main Level |
Bedroom |
|
|
12'6'' x 11'10'' |
|
Main Level |
Bedroom |
|
|
13'4'' x 11'10'' |
|
Main Level |
3pc Ensuite Bath |
|
|
6'10'' x 6' |
|
Main Level |
4pc Bathroom |
|
|
9' x 7'8'' |
|
Main Level |
Primary Bedroom |
|
|
13'10'' x 12'6'' |
|
Main Level |
Living Room |
|
|
20' x 16' |
|
Main Level |
Dining Room |
|
|
17'4'' x 13' |
|
Main Level |
Dining Nook |
|
|
10' x 10' |
|
Main Level |
Kitchen |
|
|
13' x 10'3'' |
Utilities
|
Electricity
|
Available |
|
Natural Gas
|
Available |
|
Telephone
|
Available |
|
Sewer
|
Available |
|
Water
|
Available |
https://www.realtor.ca/real-estate/29214969/2952-clapperton-avenue-merritt-merritt