Contact us for more information
Raj Kandola
Personal Real Estate Corporation
(250) 869-0101
https://assurancerealty.c21.ca/
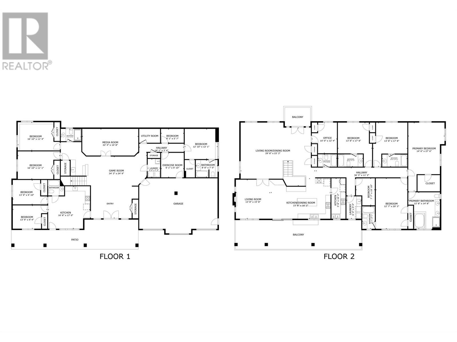
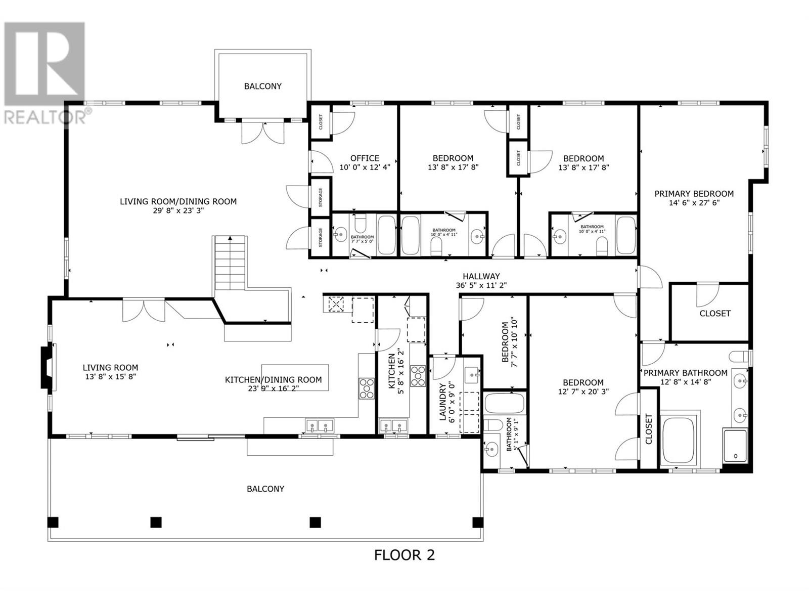
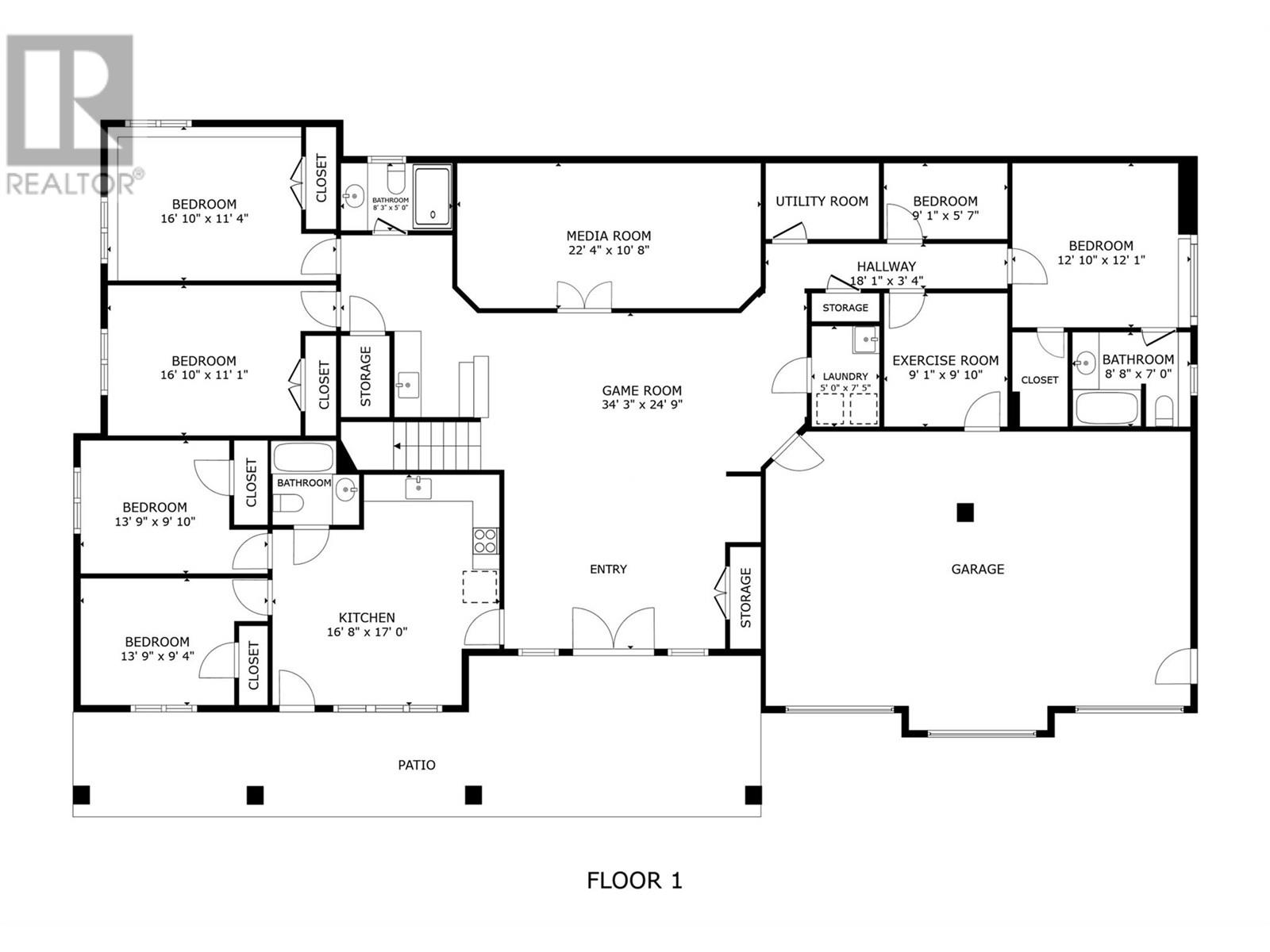
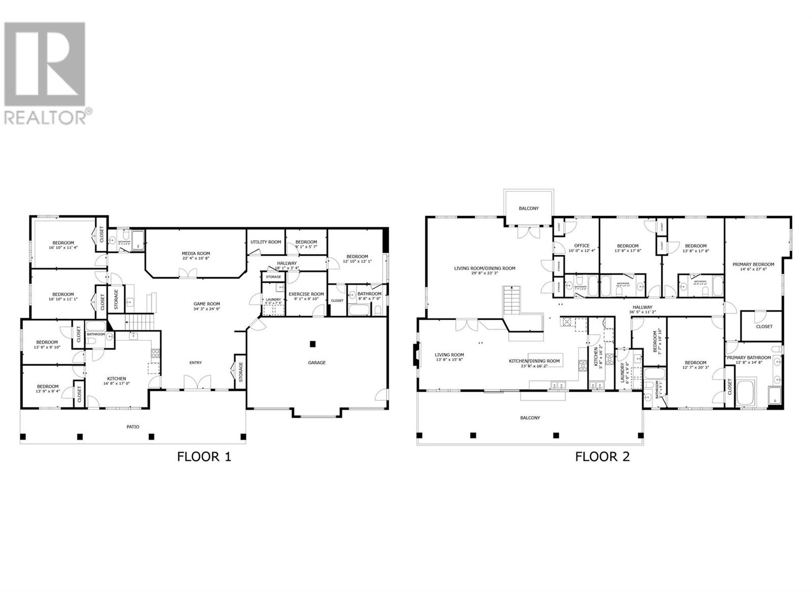
Welcome to 4561 Rittich Road! This exceptional 5.066-acre estate offers the perfect blend of agricultural charm and luxurious living in the heart of the Okanagan. Surrounded by sweeping views and a lush, mature orchard, this property is ideal for large families, multi-generational living, or those seeking space and serenity. The expansive 9-bedroom, 8-bathroom home features a beautiful, spacious main kitchen designed for entertaining, along with a fully equipped prep kitchen for added functionality. A generous living room offers plenty of space for gatherings, relaxation, or hosting guests in comfort. The dedicated theatre room is perfect for cozy family movie nights, while a self-contained legal 2-bedroom suite provides excellent rental or guest potential. Outside, you'll find approximately 3 acres of fully producing Staccato cherries, offering both beauty and agricultural income potential. Enjoy the outdoors with extensive green space, privacy, and the productivity of your own established orchard. A 3-car garage and ample parking complete the package. Whether you're looking to enjoy peaceful country living close to city conveniences or invest in a versatile estate property, 4561 Rittich Road delivers unmatched potential. (id:26472)
| MLS® Number | 10356694 |
| Property Type | Single Family |
| Neigbourhood | Ellison |
| Features | Central Island, Balcony, Jacuzzi Bath-tub |
| Parking Space Total | 13 |
| Bathroom Total | 8 |
| Bedrooms Total | 9 |
| Appliances | Refrigerator, Dishwasher, Dryer, Range - Electric, Range - Gas, Hood Fan, Washer, Oven - Built-in |
| Basement Type | Full |
| Constructed Date | 2015 |
| Construction Style Attachment | Detached |
| Cooling Type | Central Air Conditioning |
| Exterior Finish | Stucco |
| Fireplace Fuel | Electric,gas |
| Fireplace Present | Yes |
| Fireplace Total | 3 |
| Fireplace Type | Unknown,unknown |
| Flooring Type | Carpeted, Ceramic Tile, Laminate |
| Heating Type | Forced Air, See Remarks |
| Roof Material | Asphalt Shingle |
| Roof Style | Unknown |
| Stories Total | 2 |
| Size Interior | 5770 Sqft |
| Type | House |
| Utility Water | Municipal Water |
| Additional Parking | |
| Attached Garage | 3 |
| Acreage | Yes |
| Sewer | Septic Tank |
| Size Irregular | 5.07 |
| Size Total | 5.07 Ac|5 - 10 Acres |
| Size Total Text | 5.07 Ac|5 - 10 Acres |
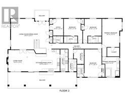
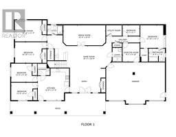
| Level | Type | Length | Width | Dimensions |
|---|---|---|---|---|
| Lower Level | Storage | 5'4'' x 9'0'' | ||
| Lower Level | Gym | 9'7'' x 8'11'' | ||
| Lower Level | Laundry Room | 4'11'' x 7'2'' | ||
| Lower Level | Media | 10'6'' x 22'3'' | ||
| Lower Level | 4pc Ensuite Bath | Measurements not available | ||
| Lower Level | Bedroom | 12'3'' x 11'10'' | ||
| Lower Level | Bedroom | 13'5'' x 10'11'' | ||
| Lower Level | Foyer | 24'7'' x 16'4'' | ||
| Lower Level | 4pc Bathroom | Measurements not available | ||
| Lower Level | Bedroom | 13'3'' x 10'7'' | ||
| Main Level | 4pc Bathroom | Measurements not available | ||
| Main Level | Storage | 7'4'' x 10'9'' | ||
| Main Level | 4pc Ensuite Bath | Measurements not available | ||
| Main Level | Bedroom | 19'11'' x 12'6'' | ||
| Main Level | 4pc Ensuite Bath | Measurements not available | ||
| Main Level | Bedroom | 12'3'' x 12'5'' | ||
| Main Level | Laundry Room | 8'10'' x 5'11'' | ||
| Main Level | Foyer | 11'6'' x 12'7'' | ||
| Main Level | Family Room | 15'3'' x 15'5'' | ||
| Main Level | Office | 7'6'' x 12'3'' | ||
| Main Level | Kitchen | 16'0'' x 5'6'' | ||
| Main Level | 4pc Ensuite Bath | Measurements not available | ||
| Main Level | Bedroom | 12'3'' x 12'5'' | ||
| Main Level | 6pc Ensuite Bath | Measurements not available | ||
| Main Level | Primary Bedroom | 12'7'' x 20'6'' | ||
| Main Level | Kitchen | 13'0'' x 17'6'' | ||
| Main Level | Dining Room | 16'10'' x 8'0'' | ||
| Main Level | Living Room | 15'11'' x 14'4'' |
https://www.realtor.ca/real-estate/28644460/4561-rittich-road-kelowna-ellison