LOADING

4967 Saddlewood Lane Radium Hot Springs, British Columbia V0A 1M0

Interested?

Contact us for more information


Generating Captcha

Scott Sauermann

(250) 342-5889

Maxwell Rockies Realty
1214 7th Avenue, Box 2280
Invermere, British Columbia V0A 1K0

(250) 341-6044
www.realestateinvermere.ca/

Your Favourites

 

No Favourites Found

 

3 Bedroom 3 Bathroom 2492 sqft
Ranch Central Air Conditioning Forced Air Acreage

$810,000

Maintenance, Reserve Fund Contributions, Insurance, Property Management, Waste Removal

$1,670 Yearly

Embark on a journey to elevated living at 4967 Saddlewood Lane. This stunning bungalow home is a masterpiece of design, offering 3 bedrooms and 2.5 bathrooms across two beautifully crafted floors. As you step inside, you're greeted by an expansive open-concept living area that seamlessly blends the kitchen, dining, and living spaces, creating an ideal environment for both entertaining and daily life. The home has large windows that flood the space with natural light, and a cozy fireplace, perfect for those chilly evenings. The living room opens to picturesque forest views, bringing nature indoors. With three well-appointed bedrooms, everyone in the family has their own personal haven. The home's thoughtful layout provides ample space for relaxation and privacy. This property isn't just a house; it's a lifestyle choice that combines comfort, functionality, and aesthetic appeal. Whether you're hosting gatherings in the open living area or enjoying quiet moments admiring the woodland views, this home offers the perfect backdrop for creating lasting memories. Your dream of owning a home that truly reflects your aspirations starts here at Saddlewood Lane. (id:26472)

Property Details

MLS® Number 10358796
Property Type Single Family
Neigbourhood Radium Hot Springs
Community Name Elk Park Ranch
Community Features Pets Allowed
Features Balcony
Parking Space Total 2

Building

Bathroom Total 3
Bedrooms Total 3
Appliances Refrigerator, Dishwasher, Dryer, Oven - Electric, Microwave, Washer & Dryer
Architectural Style Ranch
Basement Type Full
Constructed Date 2015
Construction Style Attachment Detached
Cooling Type Central Air Conditioning
Exterior Finish Other
Half Bath Total 1
Heating Type Forced Air
Roof Material Asphalt Shingle
Roof Style Unknown
Stories Total 2
Size Interior 2492 Sqft
Type House
Utility Water Municipal Water

Parking

Attached Garage 2

Land

Acreage Yes
Sewer Municipal Sewage System
Size Irregular 1.97
Size Total 1.97 Ac|1 - 5 Acres
Size Total Text 1.97 Ac|1 - 5 Acres

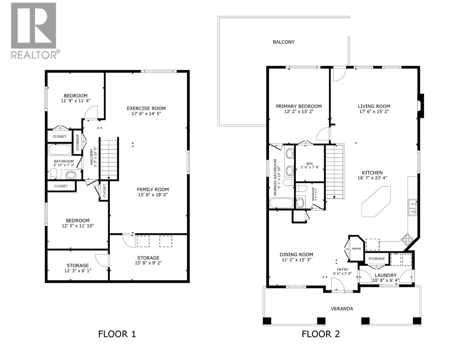
Rooms

Level Type Dimensions
Basement Storage 12'3'' x 6'
Basement Recreation Room 17'6'' x 14'5''
Basement Family Room 18' x 15'8''
Basement Bedroom 12'3'' x 11'10''
Basement Full Bathroom Measurements not available
Basement Bedroom 11'9'' x 11'4''
Main Level Laundry Room 10' x 6'
Main Level Full Ensuite Bathroom Measurements not available
Main Level Partial Bathroom Measurements not available
Main Level Dining Room 11'2'' x 15'3''
Main Level Primary Bedroom 12'2'' x 15'2''
Main Level Living Room 17' x 15'
Main Level Kitchen 18' x 13'

https://www.realtor.ca/real-estate/28709546/4967-saddlewood-lane-radium-hot-springs-radium-hot-springs