LOADING

8900 Jim Bailey Road Unit# 112 Kelowna, British Columbia V4V 1E5

Interested?

Contact us for more information


Generating Captcha

Keith Watts
Personal Real Estate Corporation

(250) 864-4241
www.keithpwatts.com/

RE/MAX Kelowna
100 - 1553 Harvey Avenue
Kelowna, British Columbia V1Y 6G1

(250) 717-5000
(250) 861-8462

Your Favourites

 

No Favourites Found

 

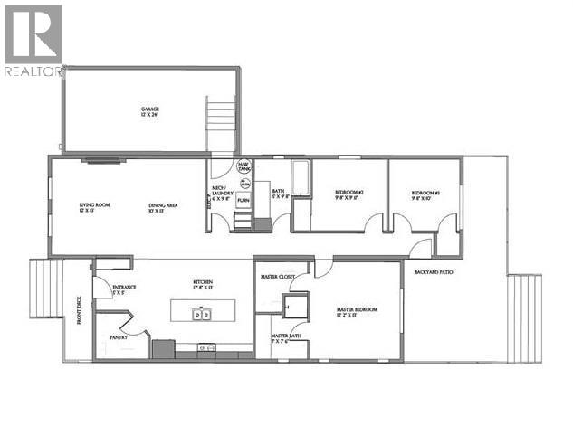
3 Bedroom 2 Bathroom 1356 sqft
Central Air Conditioning See Remarks

$453,800

Maintenance, Pad Rental

$575 Monthly

Welcome to Deer Meadows. Your new neighbourhood is conveniently located just steps away from the Rail Trial where you are connected to Wood lake and the blue waters of Kalamalka lake with trail access spanning from Vernon to Kelowna. Deer Meadows is a quick 10 minute commute from the Airport and UBCO's Campus. Rentals and pets are allowed. This Skylark home is built by Woodland Crafted Homes and features a modern layout. With a unique exterior, the 3 bedroom, 2 bathroom home design is created for those that want it all. Entering to the open-concept Kitchen, you walk through a bright front patio and are met with the highly coveted seamless living/dining space. Guest room and spacious Master Bedroom at the back of the house means optimized space distribution. Base price comes with a carport and may be upgraded to a garage. The secluded Backyard Patio opens off the beautiful Master Bedroom to ensure these homeowners get every bit of sunshine that the Okanagan has to offer. SHORT TERM RENTALS PERMITTED. Schedule your appointment today! (id:26472)

Property Details

MLS® Number 10370255
Property Type Single Family
Neigbourhood Lake Country East / Oyama
Parking Space Total 2

Building

Bathroom Total 2
Bedrooms Total 3
Appliances Refrigerator, Dishwasher, Range - Electric, Microwave
Constructed Date 2025
Cooling Type Central Air Conditioning
Exterior Finish Stone, Stucco
Fire Protection Smoke Detector Only
Flooring Type Vinyl
Heating Type See Remarks
Roof Material Other
Roof Style Unknown
Stories Total 1
Size Interior 1356 Sqft
Type Manufactured Home
Utility Water Well

Parking

Carport

Land

Acreage No
Sewer Septic Tank
Size Total Text Under 1 Acre

Rooms

Level Type Dimensions
Main Level 3pc Ensuite Bath 7' x 7'6''
Main Level Primary Bedroom 12'2'' x 13'
Main Level Bedroom 9'6'' x 13'
Main Level Bedroom 9'8'' x 10'
Main Level 4pc Bathroom 5' x 9'8''
Main Level Laundry Room 6' x 9'8''
Main Level Dining Room 10' x 13'
Main Level Living Room 12' x 13'
Main Level Kitchen 17' x 13'
Main Level Foyer 5' x 5'

https://www.realtor.ca/real-estate/29147482/8900-jim-bailey-road-unit-112-kelowna-lake-country-east-oyama